:fill(white)/65abf93983841b0e4c65a05c6bc93639.jpg)
:fill(white)/eb519f678025cb5721413d1607ae3300.jpg)
:fill(white)/65abf93983841b0e4c65a05c6bc93639.jpg)
:fill(white)/eb519f678025cb5721413d1607ae3300.jpg)
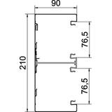
Kanał podparapetowy GS do montażu bezpośrednio na ścianie lub na wspornikach montażowych. Kanał podparapetowy GS jest wyposażony w języczki samostykające się do mocowania przegrody z blachy stalowej. Wyrównanie potencjałów między podstawami kanałów wykonuje się za pomocą złączki. Opatentowana, samostykowa pokrywa kanału gwarantuje zabezpieczenie i wyrównanie potencjałów między podstawą a pokrywą. Otwór systemowy wynosi 76,5 mm.