Menu
Konto
0
Ulubione
0
Koszyk
Biuro:
tel. +48 (81) 710 11 25
pon.-pt.: 8:00 – 18:00
Darmowa dostawa od 200 zł
Sprawdź
Blog
Oddziały hurtowe
Polski / PLN
Wyświetl cenę
0
0
Koszyk:
0,00 zł
Kategorie
Producenci
Promocje
Konfiguratory
Strefa porad
Programy partnerskie
Zostań naszym klientem
Kontakt
Strona główna
Kanały instalacyjne ścienne i sufitowe
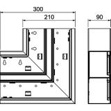
Narożnik płaski do kanałów elektroinstalacyjnych
GS-DFS90210RW, Naroże płaskie 90X210 CZ.B.
OBO BETTERMAN
GS-DFS90210RW, Naroże płaskie 90X210 CZ.B.
Kod produktu
872087
EAN
4012195666219
Jednostka
szt
Numer katalogowy
6278520
Link do producenta
OBO BETTERMAN
Podstawowe dane techniczne
ETIM
EC000876
24h
Magazyn: 0
14 dni
Producent: 0
Punkty w Elektroklub: pt.
Dodaj do ulubionych
Opis produktu
Naroże płaskie, wznoszące, do zmiany kierunku kanału podparapetowego GS.
Dane techniczne
Numer katalogowy:
6278520
ETIM:
EC000876