:fill(white)/db308134b5a9a2ad28fad56d0c20acd4.jpg)
:fill(white)/d86f178b9c3227d380e78a0ab0894263.jpg)
:fill(white)/db308134b5a9a2ad28fad56d0c20acd4.jpg)
:fill(white)/d86f178b9c3227d380e78a0ab0894263.jpg)
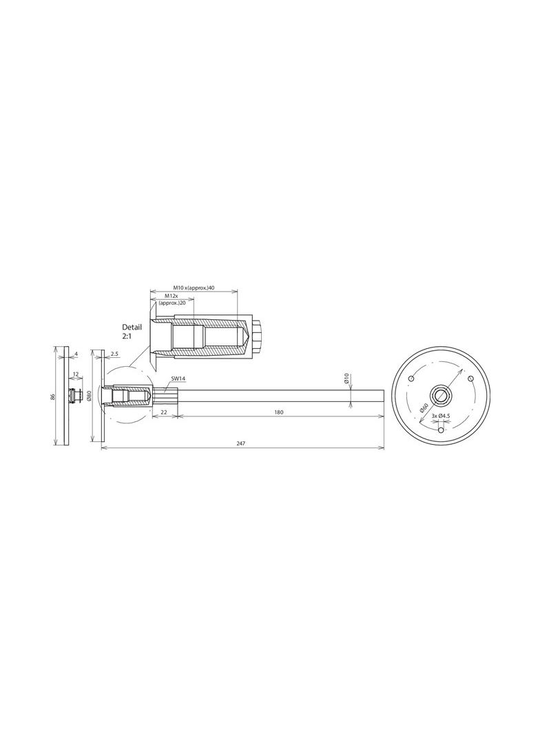
Wypust uziemiający zgodny z normą DIN EN 62561-1, jako odporne na korozję połączenie przewodu odprowadzającego np. ze zbrojeniem budynków lub instalacją uziemiającą, w celu ustanowienia połączenia wyrównawczego ochronnego i/lub połączenia wyrównawczego funkcjonalnego, do montażu w szalunku. Wykonanie typu M z mocowanym na wcisk prętem przyłączeniowym (10 mm) i gwintem przyłączeniowym M10 / 12.