Menu
Konto
0
Ulubione
0
Koszyk
Biuro:
tel. +48 (81) 710 11 25
pon.-pt.: 8:00 – 18:00
Darmowa dostawa od 200 zł
Sprawdź
Blog
Oddziały hurtowe
Polski / PLN
Wyświetl cenę
0
0
Koszyk:
0,00 zł
Kategorie
Producenci
Promocje
Konfiguratory
Strefa porad
Programy partnerskie
Zostań naszym klientem
Kontakt
Strona główna
Kanały instalacyjne ścienne i sufitowe
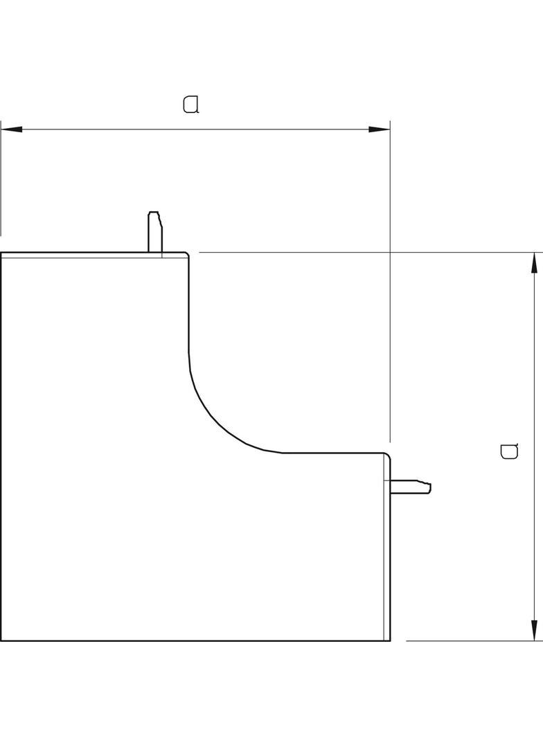
Narożnik wewnętrzny do kanałów instalacyjnych
WDK/HI 15040, NAS.NAR.WEW.CZ.B WDK 15040
OBO BETTERMAN
WDK/HI 15040, NAS.NAR.WEW.CZ.B WDK 15040
Kod produktu
188181
EAN
4012196494651
Jednostka
szt
Numer katalogowy
6191851
Link do producenta
OBO BETTERMAN
Podstawowe dane techniczne
ETIM
EC000862
24h
Magazyn: 0
14 dni
Producent: 144
Punkty w Elektroklub: pt.
Dodaj do ulubionych
Opis produktu
Naroże wewnętrzne do zmiany kierunków kanałów
WDK
.
Dane techniczne
Numer katalogowy:
6191851
ETIM:
EC000862
Pliki do pobrania
2
Deklaracja RoHS
6191851-RoHS.pdf
Karta produktu
WDK HI15040RW-6191851-pl_PL.pdf