Menu
Konto
0
Ulubione
0
Koszyk
Biuro:
tel. +48 (81) 710 11 25
pon.-pt.: 8:00 – 18:00
Darmowa dostawa od 200 zł
Sprawdź
Blog
Oddziały hurtowe
Polski / PLN
Wyświetl cenę
0
0
Koszyk:
0,00 zł
Kategorie
Producenci
Promocje
Konfiguratory
Strefa porad
Programy partnerskie
Zostań naszym klientem
Kontakt
Strona główna
Kanały instalacyjne ścienne i sufitowe
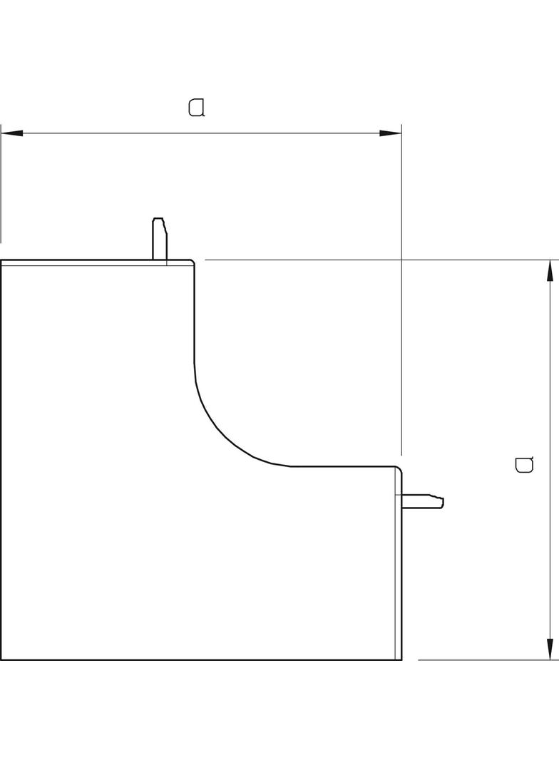
Narożnik wewnętrzny do kanałów instalacyjnych
WDKH-I30045RW, Naroże wewnętrzne bezhalogenowe
OBO BETTERMAN
WDKH-I30045RW, Naroże wewnętrzne bezhalogenowe
Kod produktu
871224
EAN
4012195814016
Jednostka
szt
Numer katalogowy
6175590
Link do producenta
OBO BETTERMAN
Podstawowe dane techniczne
ETIM
EC000862
24h
Magazyn: 0
14 dni
Producent: 0
Punkty w Elektroklub: pt.
Dodaj do ulubionych
Opis produktu
Naroże wewnętrzne do zmiany kierunków bezhalogenowych kanałów
WDKH
.
Dane techniczne
Numer katalogowy:
6175590
ETIM:
EC000862
Pliki do pobrania
2
Deklaracja RoHS
6175590-RoHS.pdf
Karta produktu
WDKH-I30045RW-6175590-pl_PL.pdf