Menu
Konto
0
Ulubione
0
Koszyk
Biuro:
tel. +48 (81) 710 11 25
pon.-pt.: 8:00 – 18:00
Darmowa dostawa od 200 zł
Sprawdź
Blog
Oddziały hurtowe
Polski / PLN
Wyświetl cenę
0
0
Koszyk:
0,00 zł
Kategorie
Producenci
Promocje
Konfiguratory
Strefa porad
Programy partnerskie
Zostań naszym klientem
Kontakt
Strona główna
Systemy instalacji podpodłogowych
Kaseta niwelacji poziomu do systemów instalacji podpodłogowych
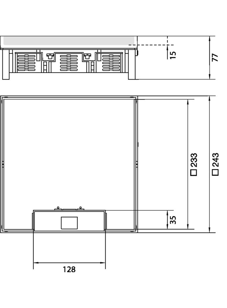
tehalit.VE-EE Baza do pokrywy pełnej/uchylnej Q12 244x244 15mm stal nierdzewna
HAGER ELECTRO
tehalit.VE-EE Baza do pokrywy pełnej/uchylnej Q12 244x244 15mm stal nierdzewna
Kod produktu
1909403
EAN
4012740028950
Jednostka
szt
Numer katalogowy
EKQ12115
Link do producenta
HAGER ELECTRO
Podstawowe dane techniczne
Kraj pochodzenia
Niemcy
ETIM
EC002603
Długość
0.07
Waga
1.45
Głębokość
0.24
Szerokość
0.24
24h
Magazyn: 0
14 dni
Producent: 0
Punkty w Elektroklub: pt.
Dodaj do ulubionych
Dane techniczne
Numer katalogowy:
EKQ12115
Kraj pochodzenia:
Niemcy
ETIM:
EC002603
Długość:
0.07
Waga:
1.45
Głębokość:
0.24
Szerokość:
0.24
Pliki do pobrania
4
Deklaracja EPD (Deklaracja Środowiskowa Produktu)
PEP_HAGE-01305-V01.01-EN.pdf
Deklaracja DOC CE (Deklaracja zgodności CE)
hager_deklaracja_CE_373_CM_2024_v1_0_sig.pdf
Deklaracja RoHS
rohs_declaration_EKQ12115_en-GB.pdf
Karta produktu
EKQ12115.pdf