Biuro: tel. +48 (81) 710 11 25 pon.-pt.: 8:00 – 18:00
Darmowa dostawa od 200 zł Sprawdź
SKSMU 650 VA4301, Koryto kablowe SKSMU
SKSMU 650 VA4301, Koryto kablowe SKSMU
SKSMU 650 VA4301, Koryto kablowe SKSMU
SKSMU 650 VA4301, Koryto kablowe SKSMU
OBO BETTERMAN

SKSMU 650 VA4301, Koryto kablowe SKSMU

Kod produktu869848
EAN4012195830764
Jednostkam
Numer katalogowy6059732
Link do producentaOBO BETTERMAN
Podstawowe dane techniczne
ETIM
EC000047
24h
Magazyn: 0
14 dni
Producent: 0
Punkty w Elektroklub: pt.

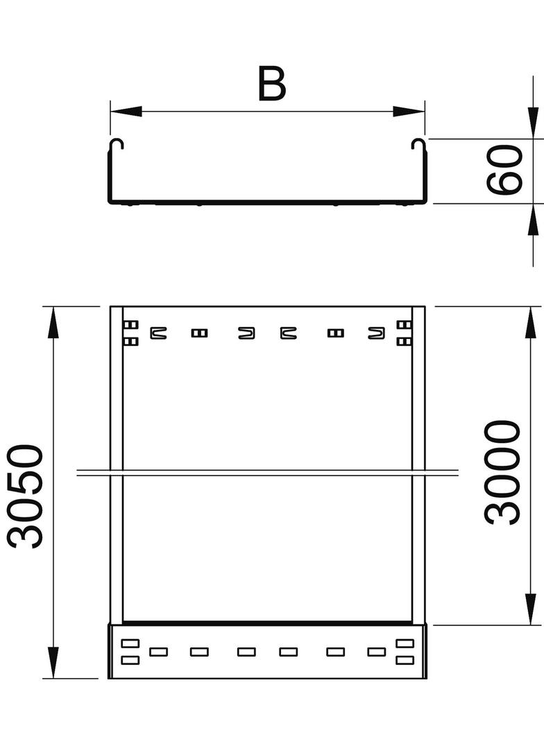
System koryt kablowych nieperforowanych ze zintegrowanym szybkozłączem. Długość użytkowa koryta kablowego wynosi 3000 mm.

Akcesoria
DRL/500, POKRYWA Z RYGLAMI 500MM VA-430