:fill(white)/9f407db3e51fa6131a342268a49e2125.jpg)
:fill(white)/640d368248bcb8aa48f4edcc71d9374e.jpg)
:fill(white)/9f407db3e51fa6131a342268a49e2125.jpg)
:fill(white)/640d368248bcb8aa48f4edcc71d9374e.jpg)
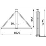
• Do montażu masztów rurowych isFang o średnicy 50 mm
• Możliwy montaż wraz z z przewodem izolowanym OBO isCon®
• Nachylenie dachu max 5 stopni
• Zawiera nakładki Rd 8-10 mm do szybkiego mocowania przewodów okrągłych
• Podstawy oraz pręty gwintowane należy zamawiać oddzielnie