:fill(white)/e8f88e5ea92b522f10d1851edae30981.jpg)
:fill(white)/855888fa3ec9f2dea95d4028f783b436.jpg)
:fill(white)/e8f88e5ea92b522f10d1851edae30981.jpg)
:fill(white)/855888fa3ec9f2dea95d4028f783b436.jpg)
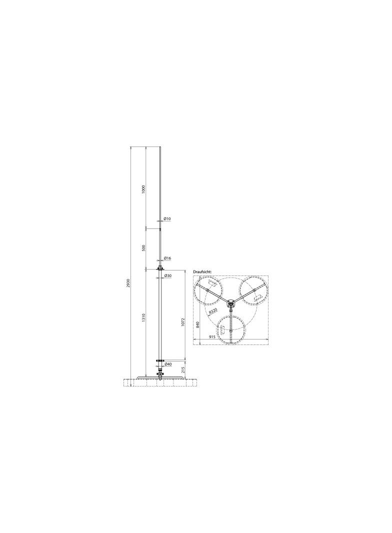
Maszt odgromowy 30 do przewodów HVI light, do ustawiania na dachach płaskich, z możliwością kompensacji nachylenia dachu do maks. 10°. Kompletny z poczwórną płytką przyłączeniową do przewodu HVI light, z zestawem mocującym do montażu przewodu na statywie na trzech nogach. Wykonanie SET II, wysokość całkowita 2800 mm, w zestawie rura wsporcza GRP/aluminium oraz iglica odgromowa.