:fill(white)/2151925f5bf3021e39c54b04a929b0f8.jpg)
:fill(white)/e0fe5fdbad16d9dd5969c9329a95ba85.jpg)
:fill(white)/2151925f5bf3021e39c54b04a929b0f8.jpg)
:fill(white)/e0fe5fdbad16d9dd5969c9329a95ba85.jpg)
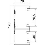
Kanał podparapetowy GS do montażu bezpośrednio na ścianie lub na wspornikach montażowych. Kanał podparapetowy GS jest wyposażony w języczki samostykowe do mocowania przegrody z blachy stalowej. Wyrównanie potencjałów między podstawami kanałów jest zapewnione dzięki złączce. Opatentowana, samostykowa pokrywa kanału gwarantuje zabezpieczenie i wyrównanie potencjałów między podstawą a pokrywą. Otwór systemowy wynosi 76,5 mm. Do prowadzenia kabli służy druga komora z otworem systemowym 45 mm. Montaż osprzętu Modul 45 nie jest możliwy w tym miejscu. Pokrywę należy zamawiać osobno.