Biuro: tel. +48 (81) 710 11 25 pon.-pt.: 8:00 – 18:00
Darmowa dostawa od 200 zł Sprawdź
DUG 350-3 9SL Pokrywa montażowa do wyż.obc.
DUG 350-3 9SL Pokrywa montażowa do wyż.obc.
DUG 350-3 9SL Pokrywa montażowa do wyż.obc.
DUG 350-3 9SL Pokrywa montażowa do wyż.obc.
OBO BETTERMAN

DUG 350-3 9SL Pokrywa montażowa do wyż.obc.

Kod produktu1142704
EAN4012196539031
Jednostkaszt
Numer katalogowy7401410
Link do producentaOBO BETTERMAN
Podstawowe dane techniczne
ETIM
EC001906
Szerokość
0.382
Długość
0.382
Głębokość
0.06
Waga
2.945
24h
Magazyn: 0
14 dni
Producent: 0
Punkty w Elektroklub: pt.

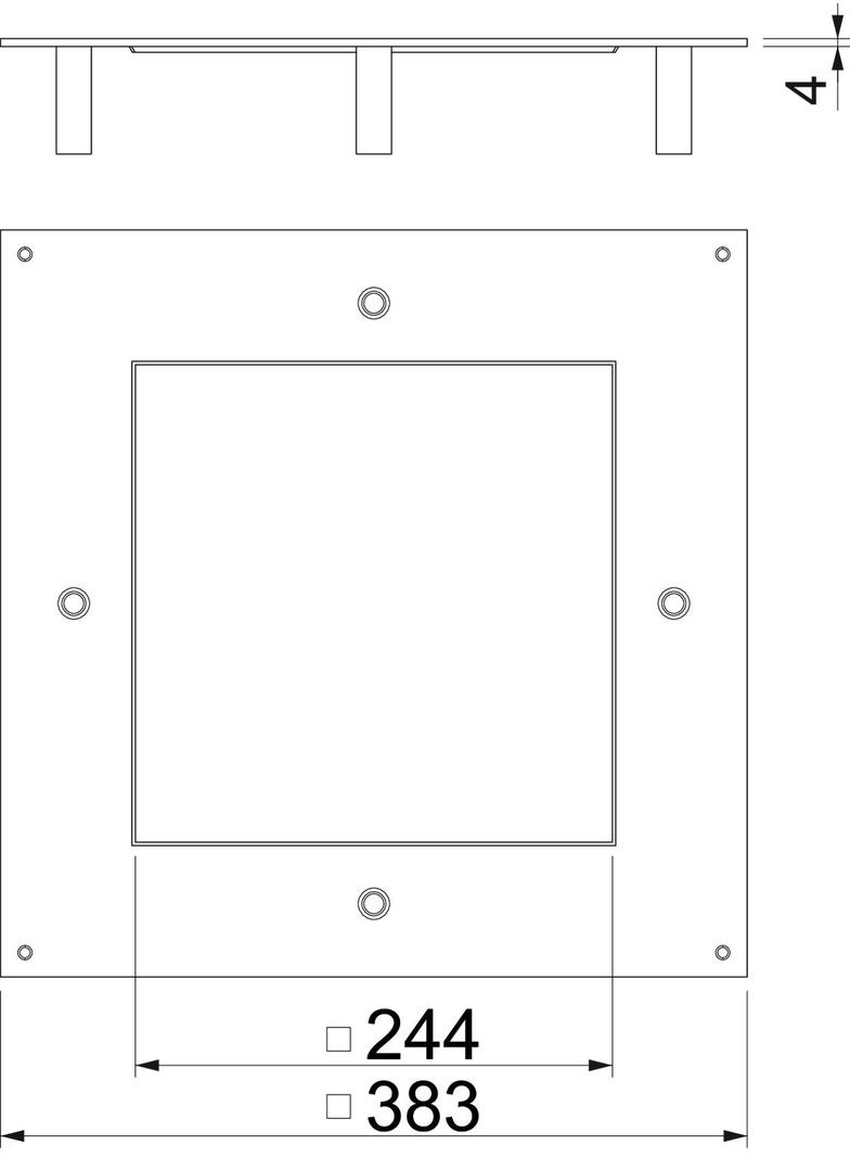
Wzmocniona pokrywa montażowa do puszki podpodłogowej UZD350-3 jest przystosowana do montażu kwadratowej kasety do wysokich obciążeń wielkości znamionowej 9. Otwór montażowy jest pogłębiony o 3 mm, można go później zamknąć pokrywą zaślepiającą.