:fill(white)/a67c9527850d8ad58ad36971c0331df8.jpg)
:fill(white)/ddcdfd64cccc9f8273b975e4ad5d54d0.jpg)
:fill(white)/a67c9527850d8ad58ad36971c0331df8.jpg)
:fill(white)/ddcdfd64cccc9f8273b975e4ad5d54d0.jpg)
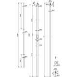
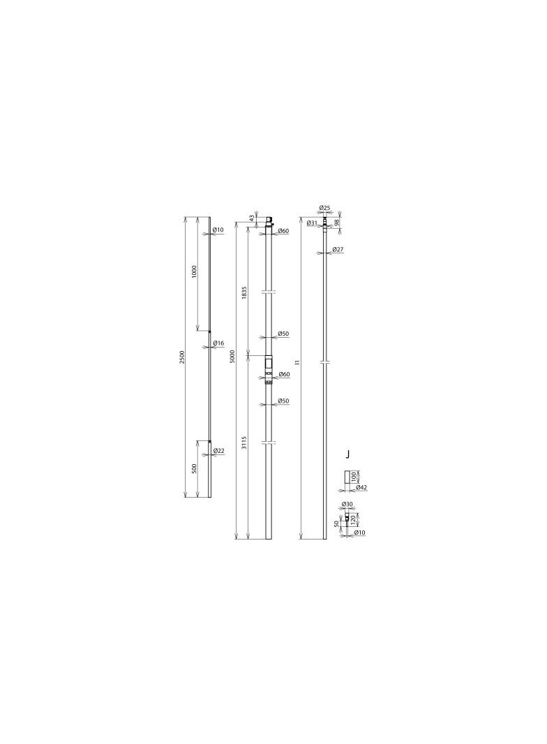
Przewód HVI power (przewód odprowadzający o izolacji wysokonapięciowej) w rurze wsporczej, pozwalający zachować odstęp separujący od elementów przewodzących prąd zgodnie z DIN EN 62305-3 (VDE 0185-305-3). Zapobiega niebezpiecznym przebiciom między częściami zewnętrznej instalacji odgromowej a wewnętrznymi częściami przewodzącymi (instalacja elektryczna, rurociągi itp.). Aby uniknąć wyładowań ślizgowych, przewód HVI power posiada specjalny płaszcz zewnętrzny, który umożliwia odprowadzanie wysokich impulsowych napięć piorunowych względem potencjału odniesienia. Wykonanie przewodu HVI power (czarny), z końcówką przyłączeniową wewnątrz i wyrównawczym elementem sprężynowym w rurze wsporczej (długość 5000 mm), z iglicą odgromową (Ø22 / 16 / 10 mm, długość 2500 mm) i z elementem uziemiającym. Ekwiwalentny odstęp separujący s ≤ 90 cm (w powietrzu), s ≤ 180 cm (materiał stały).