Biuro: tel. +48 (81) 710 11 25 pon.-pt.: 8:00 – 18:00
Darmowa dostawa od 200 zł Sprawdź
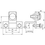
Zacisk krawędziowy 5-18 mm, do drutu 6-10 mm, stal nierdzewna NIRO
Zacisk krawędziowy 5-18 mm, do drutu 6-10 mm, stal nierdzewna NIRO
Zacisk krawędziowy 5-18 mm, do drutu 6-10 mm, stal nierdzewna NIRO
Zacisk krawędziowy 5-18 mm, do drutu 6-10 mm, stal nierdzewna NIRO
DEHN POLSKA sp. z o. o.

Zacisk krawędziowy 5-18 mm, do drutu 6-10 mm, stal nierdzewna NIRO

Kod produktu1025970
EAN4013364119178
Jednostkaszt
Numer katalogowy372119
Link do producentaDEHN POLSKA sp. z o. o.
Podstawowe dane techniczne
ETIM
EC000513
Kraj pochodzenia
Niemcy
Waga
0.2772
24h
Magazyn: 0
14 dni
Producent: 0
Punkty w Elektroklub: pt.

Zacisk przyłączeniowy do dźwigarów stalowych spełniający wymagania normy DIN EN 62561-1, do podłączania do konstrukcji stalowych. Wykonanie pionowe z ramą zaciskową, połączenie wzdłużne lub poprzeczne.