:fill(white)/53e0f758598d9c3a4925725a3d334332.jpg)
:fill(white)/1f0a65d130b473c16e7554491e44600f.jpg)
:fill(white)/53e0f758598d9c3a4925725a3d334332.jpg)
:fill(white)/1f0a65d130b473c16e7554491e44600f.jpg)
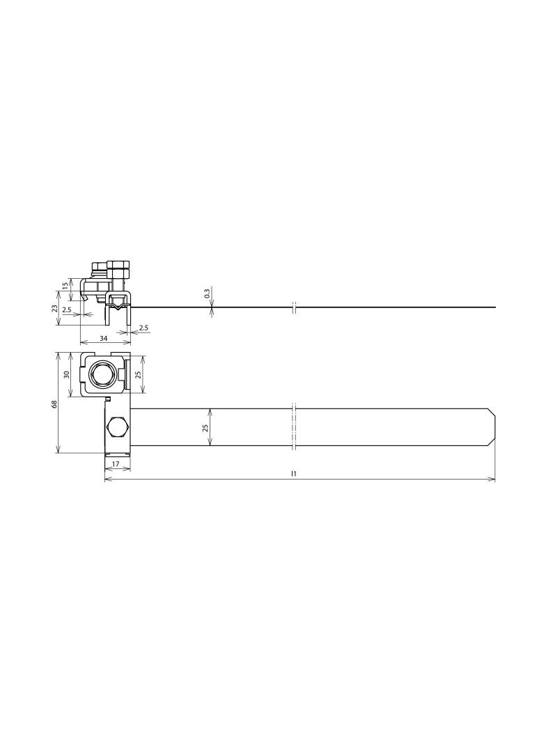
Obejma taśmowa zabezpieczona przed samoczynnym poluzowaniem zgodnie z normą DIN EN 62561-1, do integracji rur z ochronnym i funkcjonalnym połączeniem wyrównawczym zgodnie z DIN VDE 0100 część 410/540 i połączeniem wyrównawczym piorunochronnym spełniającym wymagania normy DIN EN 62305-3 (VDE 0185-305-3). Wykonanie kompletne, z bezstopniowo regulowaną taśmą napinającą ze stali nierdzewnej, do przyłączenia 1 przewodu, drut okrągły Ø10 mm lub 1-2 przewodów, drut okrągły Ø6-8 mm lub 4-50 mm² (drut / wielodrutowo).