:fill(white)/83c73b56bce2b50bd52a63b1cca7305b.jpg)
:fill(white)/908115ed1ba4fb12a7aec78263fd7596.jpg)
:fill(white)/83c73b56bce2b50bd52a63b1cca7305b.jpg)
:fill(white)/908115ed1ba4fb12a7aec78263fd7596.jpg)
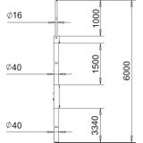
• do budowy systemu zwodów odgromowych
• dedykowany do trójnogów isFang typu isFang 3B-100/150
• dedykowany do obciążeń wiatrem zgodnie z Eurokodem 1: DIN EN 1991-1-4
• do montażu na konstrukcji budynku z wspornikiem isFang
• Przewód OBO isCon® można mocować za pomocą akcesoriów
• dedykowany do przewodów isCon® mocowanych zewnętrznie